
Завод «Бурава» – производитель в России тонкослойных отстойников для эффективной очистки воды.
Тонкослойные отстойники
Модельный ряд
|
Модель отстойника |
Производительность, м3/час |
Габаритные размеры (LxBxH), мм |
|
BURAVA-TC-1 |
1 |
1600х600х1700 |
|
BURAVA-TC-3 |
3 |
1700х1100х2200 |
|
BURAVA-TC-5 |
5 |
2300х1100х2200 |
|
BURAVA-TC-10 |
10 |
2600х2100х2300 |
|
BURAVA-TC-15 |
15 |
2800х2100х2400 |
|
BURAVA-TC-20 |
20 |
4200х2100х2400 |
|
BURAVA-TC-30 |
30 |
5300х2100х2400 |
|
BURAVA-TC-40 |
40 |
6500х2100х2400 |
|
BURAVA-TC-50 |
50 |
8600х2100х2400 |
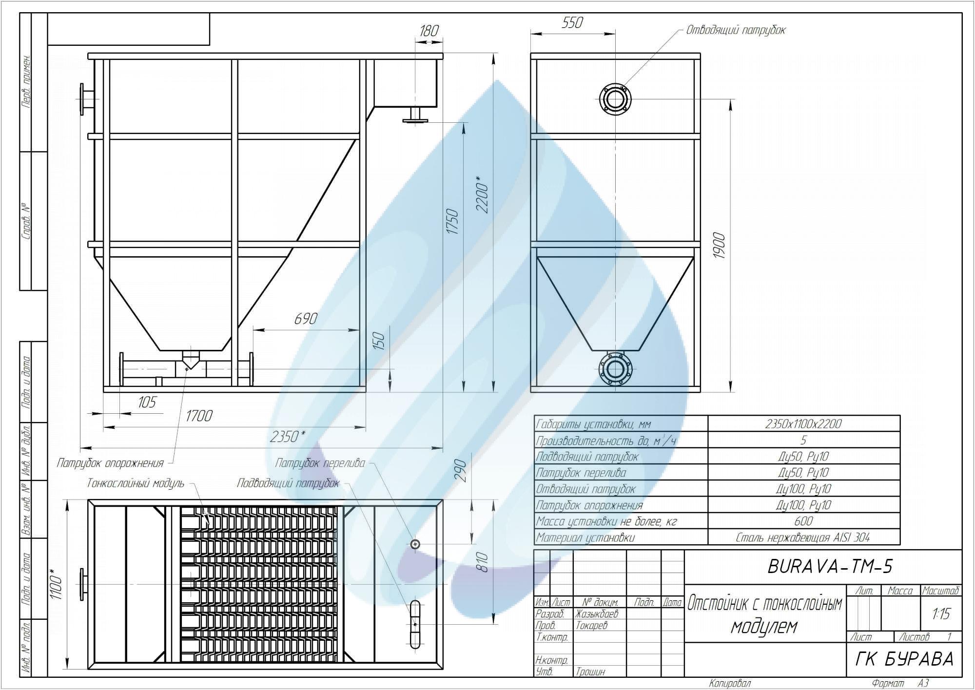
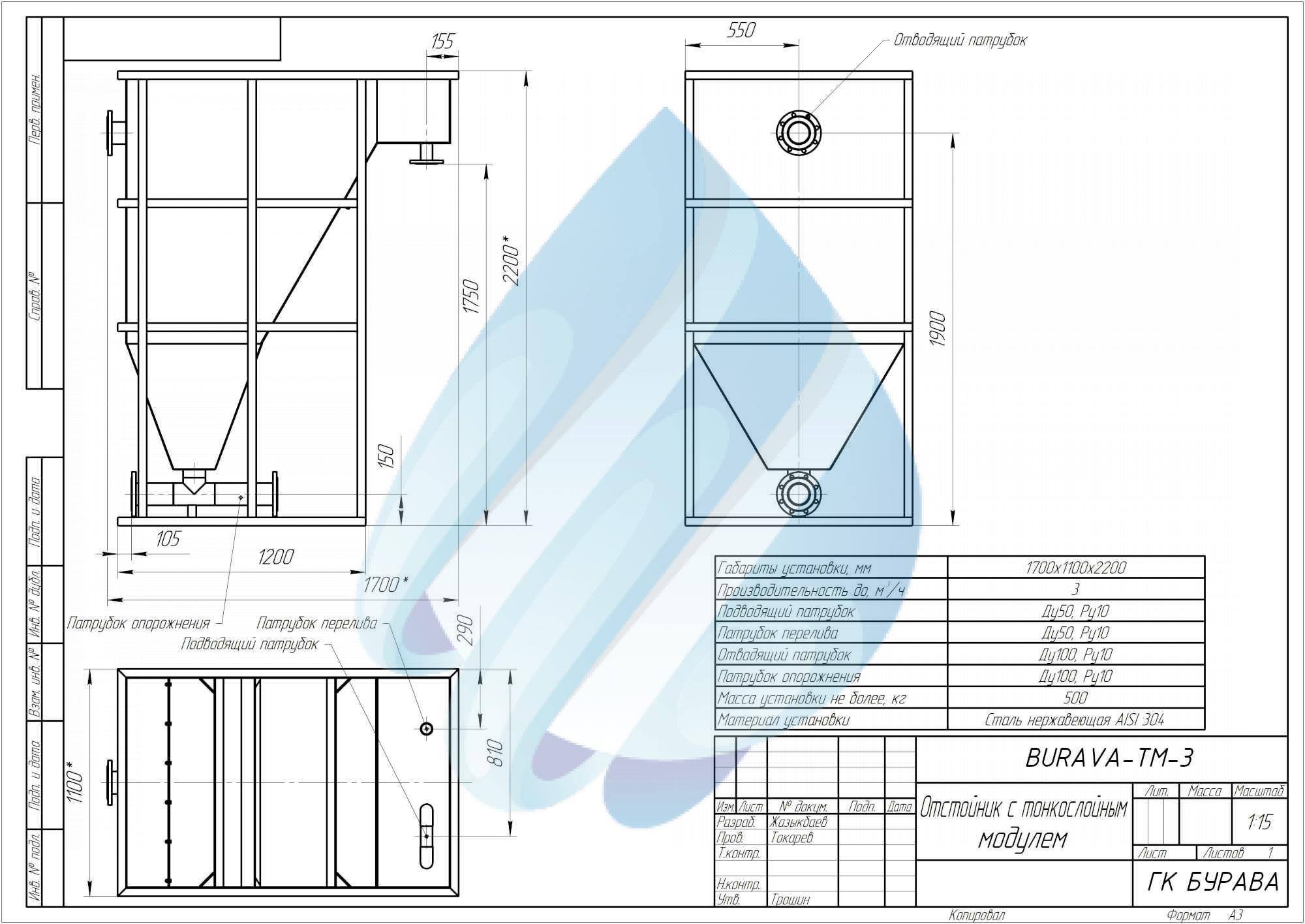
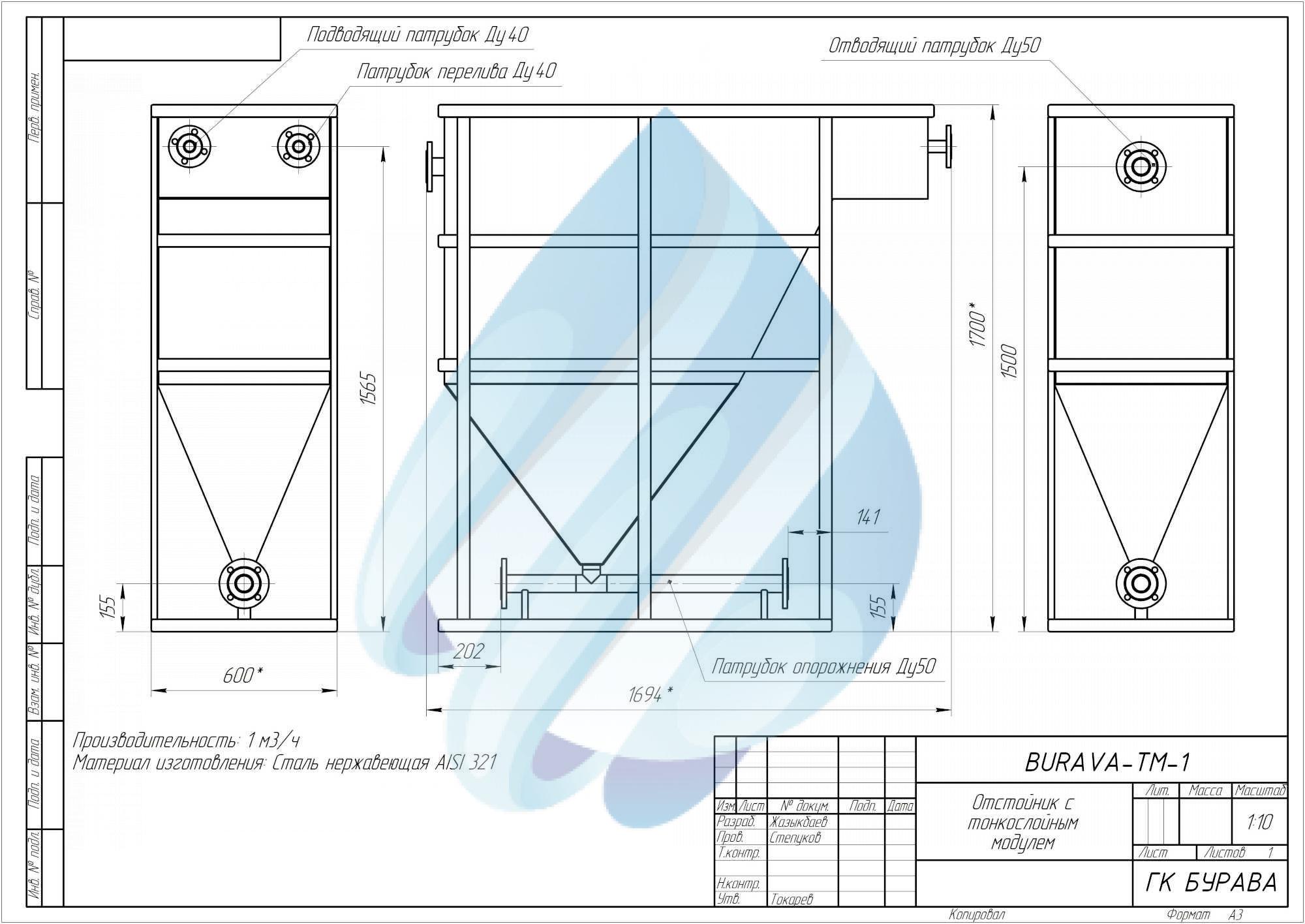
Эскизы оборудования
Для оперативного предоставления коммерческого предложения просим вас отправить опросный лист на почту sales@tonkosloinik.ru
Применение

Тонкослойный отстойник является важной частью систем очистки сточных вод. Он используется для эффективного удаления осадков и загрязнений из воды, обеспечивая чистоту и прозрачность жидкости. Отстойники для очистных сооружений широко применяются в различных отраслях, включая коммунальное хозяйство, промышленность и производство питьевой воды.
Тонкослойные модули для отстойников используются для улучшения процесса осаждения и обеспечения более эффективного удаления мелких частиц и осадков из сточных вод. Они способствуют повышению производительности системы очистки и обеспечивают более высокое качество очищенной воды.
Горизонтальные тонкослойные отстойники обеспечивают равномерное распределение потока жидкости, что способствует более эффективному осаждению частиц в осадочном слое. Это позволяет улучшить процесс очистки и обеспечить более высокую эффективность работы отстойника.
При выборе отстойника для очистных сооружений важно учитывать не только его производительность, но и особенности конкретного производственного процесса или коммунального хозяйства. Качественный расчет тонкослойного отстойника позволяет оптимизировать его работу и обеспечить эффективное удаление осадков и загрязнений из сточных вод.
Чтобы купить отстойник горизонтальный двухступенчатый с тонкослойными модулями, важно обратить внимание на качество и надежность оборудования, а также на его соответствие требованиям и стандартам экологической безопасности. Вместе с тем, важно учитывать технические характеристики и особенности конкретного объекта для обеспечения оптимальной работы отстойника.
Отстойник горизонтальный тонкослойный серии LIMAN предназначен для разделение суспензий в различных областях промышленности, водоподготовки и очистки сточных вод. Простота конструкции изделия и отсутствие вращающихся и трущихся деталей гарантирует длительный срок эксплуатации.
Конечно, вот несколько вопросов и ответов, связанных с тонкослойными отстойниками и отстойниками для очистных сооружений:
- Чем характеризуется тонкослойный отстойник в системах очистки сточных вод?Тонкослойный отстойник характеризуется способностью эффективно удерживать мелкие частицы и осадки, обеспечивая чистоту и прозрачность очищенной воды. Он играет важную роль в процессе очистки, способствуя улучшению качества воды и соблюдению экологических стандартов.
- Какие преимущества предоставляют отстойники для очистных сооружений?Отстойники для очистных сооружений обеспечивают эффективное удаление осадков и загрязнений из сточных вод, что способствует снижению уровня загрязнения в окружающей среде. Они также способствуют улучшению качества воды и обеспечивают соблюдение стандартов экологической безопасности.
- Каковы основные принципы работы тонкослойных отстойников в системах очистки сточных вод?Основные принципы работы тонкослойных отстойников основаны на процессах осаждения и фильтрации, где мелкие частицы и осадки удерживаются на поверхности специальных модулей или стенок отстойника. Это позволяет эффективно удалить загрязнения и получить чистую воду на выходе.
- Какие факторы следует учитывать при выборе и установке тонкослойных отстойников?При выборе и установке тонкослойных отстойников необходимо учитывать производительность, размеры установки, типы загрязнений, а также требования и стандарты экологической безопасности. Важно выбрать подходящий тип отстойника, который наилучшим образом соответствует требованиям конкретного производственного процесса или коммунального хозяйства.
- Как осуществляется техническое обслуживание тонкослойных отстойников?Техническое обслуживание тонкослойных отстойников включает регулярную очистку от накопившихся осадков, проверку состояния модулей и стенок, а также замену изношенных компонентов. Регулярное обслуживание способствует эффективной работе системы очистки и поддержанию высокого качества воды.
Принцип работы установки
Изделие представляет собой емкость, разделенную на приемную зону, отстойная зона в которой расположен тонкослойный модуль и зона осветленной воды.
Исходная вода поступает в приемную зону отстойника. Далее поток осветляемой воды направляется в зону с тонкослойным модулем, где за счет расположения модуля организована противоточная схема движения воды и осадка. Площадь отстойника на 100% перекрывается модулем, который собран из полимерных пластин образующих ячеистую структуру. Наиболее крупные хлопья, осаждаясь в слоях небольшой высоты, захватывают более мелкие частицы и, накапливаясь, сползают по наклонной поверхности тонкослойного модуля.
Осадок собирается в нижней конической части отстойника, откуда периодически выводится через трубопровод сброса осадка.
Осветленная вода через верхнее зубчатое переливное устройство поступает в зону осветленной воды, откуда самотеком отводится по трубопроводу.
Оборудование как правило изготавливается из нержавеющей стали, но по требованию заказчика может быть применена конструкционная сталь с антикоррозийным покрытием.
Применение тонкослойного отстаивания
Тонкослойные отстойники успешно используются для очистки сточных вод от взвешенных веществ во многих отраслях производства и народного хозяйства, в том числе в технологиях водоподготовки и водоочистки.
Области применения тонкослойных отстойников:
- При очистке канализационных сточных вод — для удаления сырого осадка и излишнего активного ила.
- В водоподготовке — для осветления воды в технических или питьевых целях.
- Очистка оборотной технической воды в производстве или на автомойках.
- В очистке производственных сточных вод — для разделения взвесей после обработки реагентами.
- Очистка производственно-ливневых стоков — в качестве предварительного этапа очистки от взвешенных веществ.
- В нефтепереработке — для отделения свободных нефтепродуктов.
Схемы движения воды в отстойнике
• Перекрестный ток воды. Осаждаемый шлам двигается поперек движению основного потока очищаемой воды.
• Противоток. Осажденный осадок стекает в направлении, противоположном движению очищаемой сточной воды.
• Прямоток. Очищаемая вода и выделенные из нее осадки двигаются в одинаковом направлении.
Опыт эксплуатации подобных очистных сооружений показывает, что максимальный эффект тонкослойного отстаивания происходит при концентрации взвешенных веществ до 125 мг/л. Отделение активного ила с учетом его малой плотности — довольно сложно протекающий процесс. Необходимо также обеспечить равномерный приток воды в межпластинчатое пространство и отвод осветленной воды из отстойника.
Как производят тонкослойные отстойники
Производство тонкослойных отстойников – это многоэтапный процесс, требующий точных инженерных расчётов, качественных материалов и строгого контроля. Завод «Бурава» использует современные технологии, чтобы создавать эффективные и долговечные конструкции.
1. Проектирование и расчёты
- Анализ требований заказчика (производительность, тип сточных вод, условия эксплуатации).
- Гидравлические и прочностные расчёты.
- 3D-моделирование для оптимизации конструкции.
2. Изготовление элементов
- Материалы: нержавеющая сталь, конструкционная сталь
- Лазерная/плазменная резка – точное раскраивание листового металла.
- Гибка и сварка – формирование пластин (ламелей) и каркаса.
- Антикоррозийная обработка – покрытие защитными составами или гальванизация.
3. Сборка модулей
- Установка пластин под расчётным углом (обычно 45–60°) для увеличения площади осаждения.
- Монтаж распределителей воды и сборных лотков.
- Герметизация стыков (для предотвращения протечек).
4. Контроль качества
- Проверка геометрии и герметичности.
- Тестовые проливы водой или модельной суспензией.
- Испытания на нагрузку и коррозионную стойкость.
5. Доставка и монтаж
- Отгрузка готовых блоков или модулей.
- Шеф-монтаж и пусконаладка на объекте заказчика.
Трубчатые или полочные модули
В отстойнике с полочными модулями секции полок имеют прямоугольное сечение, а материалом для их изготовления служат плоские или гофрированные листы из стали, алюминия или разнообразных видов полимеров — стеклопластика, полиэтилена, полипропилена. Для полочных элементов скорость потока на практике принимается 5-10 мм/с.
В трубчатом отстойнике ярусы тонкослойного модуля разделены вертикально на отдельные каналы в виде труб. В такой конструкции легче добиться ламинарного тока воды.
Трубчатые тонкослойные отстойники характеризуются повышенной жесткостью элементов и постоянными размерами по длине. Эти отстойники нормально эксплуатируются при высоких скоростях потока.
Скорость тока воды в трубчатых элементах отстойника — до 20 мм/с. Угол наклона трубок может быть как совсем малым — до 5°,— так и довольно большим — до 60°. Если угол наклона трубок невелик, это отстойник периодического действия. В таком отстойнике период отстаивания чередуется с периодом очистки трубок от осадка.
Эти отстойники целесообразно использовать для очистки слабозагрязненных вод, с суточным расходом потока от 100 м³/сут до 10 000 м³/сут. Трубчатый периодический отстойник характеризуется эффективностью очистки 80-85%.
Конструкция отстойника
Конструкция тонкослойного отстойника — круглое или прямоугольное сооружение, разделенное внутри на отдельные слои (ярусы) при помощи наклонных параллельных пластин. Отстаивание воды происходит в каждой секции тонкослойного модуля, а наклонные пластины служат для удаления собранного осадка.
По способу установки наклонных пластин выделяют несколько типов конструкций тонкослойных отстойников:
- объединение пластин каркасом в модули,
- крепление пластин на общей раме,
- установленной в объеме отстойника.
Последний вариант монтажа позволяет более надежно состыковать пластины на одном ярусе.
Тонкослойные отстойники — классификация
Классификация тонкослойных отстойников происходит по следующим категориям:
- С трубчатой или полочной конструкцией наклонных модулей;
- С периодическим или непрерывным режимом работы;
- По направлению потоков очищаемой воды и отделяемого осадка — прямоточное, противоточное и перекрестное движение.
Мы работаем

Завод по производству Тонкослойных Отстойников
Изготавливаем оборудование под ваши требования



























